104 Rd 3 South SWCartersville, GA 30120




Mortgage Calculator
Monthly Payment (Est.)
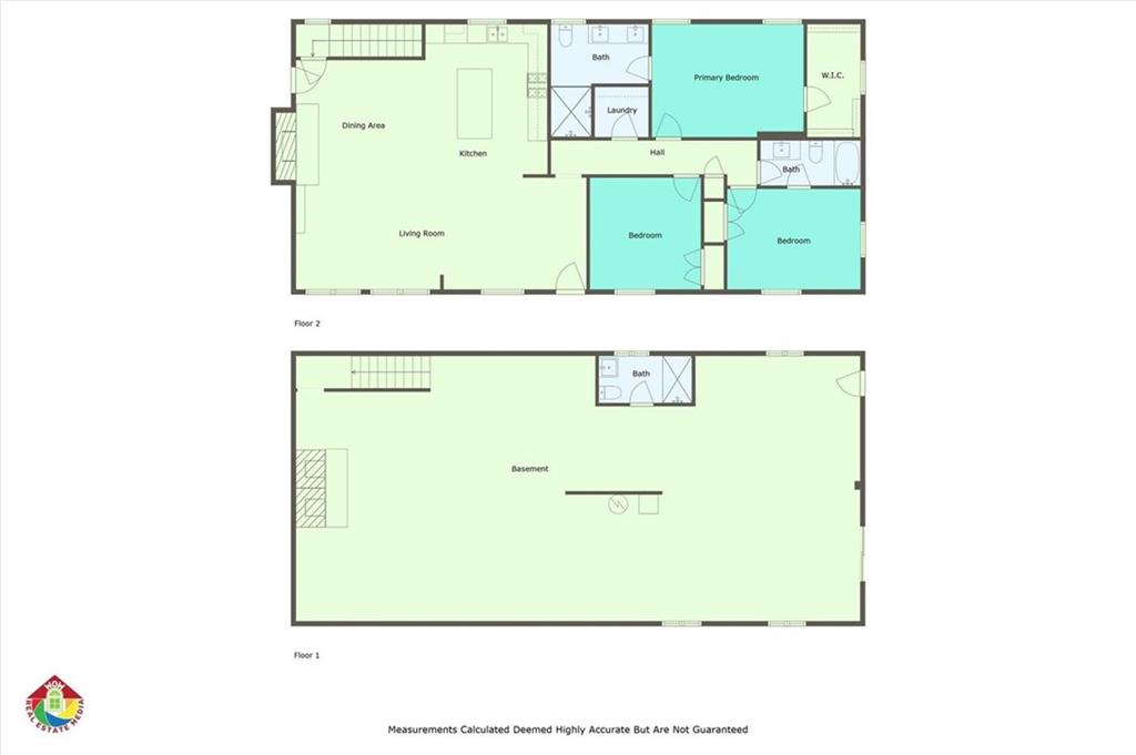
$2,623Welcome home to 104 Road No 3! This completely updated brick ranch is situated on a 2.281 acre mini-farm with barn! Can be purchased with the adjacent parcel for an additional 2.28 acres (Parcel 0050-0290-003). No detail was overlooked: from all NEW electrical, plumbing & HVAC to new architectural shingles, windows & spray foam insulation. All NEW cabinets, countertops, flooring & fixtures throughout. The electrical system has even been prepped for a generator. Everything is NEW. The huge country kitchen incorporates a tasteful blend of white & stained cabinets with new stone counters & stainless steel appliances. The primary bedroom en suite bathroom boasts new tile floors & walls with double sinks & a double walk-in shower with two shower heads & an additional rain can. Enjoy endless water with the brand new, tankless water heater or the efficiency of new HVAC coupled with spray foam insulation! Whether you want animals or a garden (or BOTH!), this property has been partially cleared with beautiful pasture & mature trees remaining & a NEW 3-board fence with 2x4 wire along the road frontage. A barn (with power & water) for animals &/or storage is located at the back of the property. New water piping was also ran from the road to the home & barn. There is nothing left to do! Please be sure to check out the virtual tour!
| 13 hours ago | Listing first seen on site | |
| 13 hours ago | Listing updated with changes from the MLS® |
Listings identified with the FMLS IDX logo come from FMLS and are held by brokerage firms other than the owner of this website and the listing brokerage is identified in any listing details. Information is deemed reliable but is not guaranteed. If you believe any FMLS listing contains material that infringes your copyrighted work, please click here to review our DMCA policy and learn how to submit a takedown request.
© 2017-2026 First Multiple Listing Service, Inc.